Questões de Concurso
Filtrar
515.374 Questões de concurso encontradas
Página 135 de 103.075
Questões por página:
Questões por página:
Concurso:
Prefeitura de Juiz de Fora
Disciplina:
Noções de Informática
Qual é o comando utilizado no AutoCAD 2015 que é utilizado para cortar em pedaços um segmento que possui outro segmento em uma intersecção?
Concurso:
Prefeitura de Juiz de Fora
Disciplina:
Edificações
Dentre os problemas patológicos mais comuns que se manifestam nas estruturas de concreto armado, ou alvenaria estrutural ou de vedação, destacam-se as fissuras. Estas normalmente são originadas a partir de: deficiências quando da elaboração dos respectivos projetos, qualidade inadequada dos materiais utilizados nas obras e falhas de execução. Existem inúmeros fatores que causam o aparecimento de fissuras, dentre os quais se destacam os recalques diferenciais (ou diferenciados). Dentre os casos em que precisam ser criadas juntas na estrutura para evitar a ocorrência de danos por recalques diferenciados das fundações, NÃO se pode citar
Concurso:
Prefeitura de Juiz de Fora
Disciplina:
Edificações
Sobre manutenção de edificações, assinale a alternativa correta.
Concurso:
Prefeitura de Juiz de Fora
Disciplina:
Edificações
Um dos ensaios mais comuns para o controle do recebimento do concreto em uma obra é o slump test ou ensaio de abatimento do cone. Para o concreto preparado pelo construtor da obra, devem ser realizados ensaios de consistência sempre que ocorrerem alterações na umidade dos agregados e em outras condições. Assinale a alternativa que NÃO corresponde a uma condição para realização desse ensaio.
Concurso:
Prefeitura de Juiz de Fora
Disciplina:
Edificações
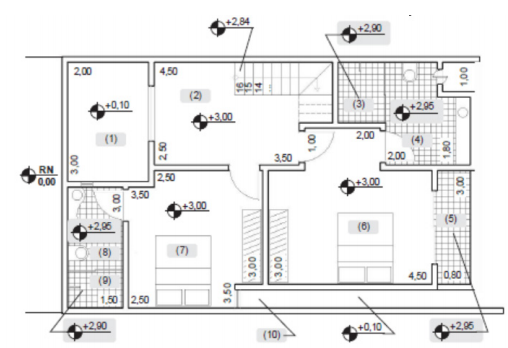
Verificando as cotas do nível de desenho, é correto afirmar que o ambiente (7)

