Questões de Concurso
Filtrar
473.210 Questões de concurso encontradas
Página 207 de 94.642
Questões por página:
Questões por página:
Concurso:
TRF - 4ª REGIÃO
Disciplina:
Direito Urbanístico
O Estatuto da Cidade estabelece que
Concurso:
TRF - 4ª REGIÃO
Disciplina:
Arquitetura
No Brasil, um Plano de Mobilidade Urbana deve
Concurso:
TRF - 4ª REGIÃO
Disciplina:
Arquitetura
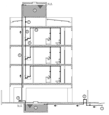
Considere o sistema predial de instalações hidrossanitárias apresentado na imagem abaixo.

Correspondem à tubulação de recalque e coluna de distribuição:
Concurso:
TRF - 4ª REGIÃO
Disciplina:
Arquitetura
Com relação às mudanças de direção na sinalização tátil direcional no piso, de acordo com a NBR 16537, quando
Concurso:
TRF - 4ª REGIÃO
Disciplina:
Arquitetura
Ao discorrer sobre o projeto de novas escadas e seus elementos, a NBR 9050 considera que